SLIM, MODERN EN VOLLEDIG VERGUNNINGSVRIJ GEBOUWD
Voor een locatie in Groesbeek ontwierp ik een complete mantelzorgwoning als vervanging van een verouderde garage. De bestaande constructie verkeerde in slechte staat en voldeed niet aan de isolatie-eisen van nu. In plaats van renoveren kozen we voor een volledig nieuwe aanbouw – modern, comfortabel en volledig vergunningsvrij gerealiseerd.
Indeling op maat – licht, zicht en comfort
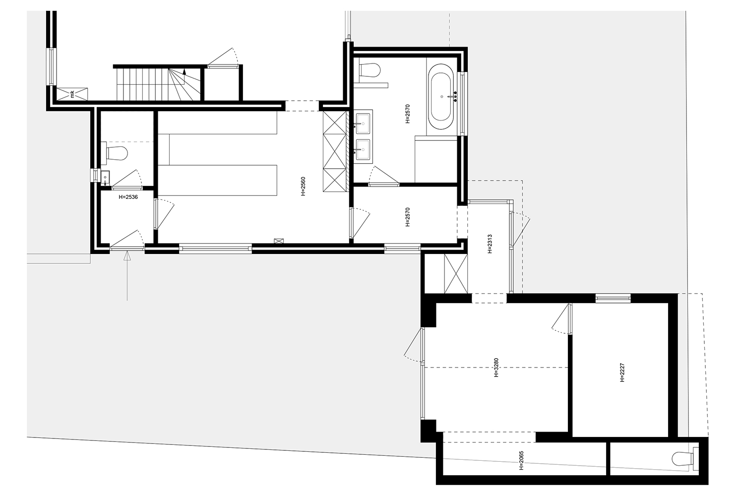
Na het bepalen van de maximale vergunningsvrije afmetingen ben ik aan de slag gegaan met het ontwerp. De nieuwe woning moest onder andere een lichte woonkamer met zicht op de tuin, een slaapkamer met inloopkast, een aparte wasruimte, technische ruimte en een fietsenberging bevatten. Ook de entree, badkamer en keuken van de bestaande woning werden onderdeel van het nieuwe geheel.
De woonkamer positioneerde ik aan de tuinzijde, met een grote schuifpui naar het terras – één van de belangrijkste wensen van de bewoners. Om ook zicht te houden op de straatzijde heb ik een zichtlijn gecreëerd vanuit de woonkamer, via de glazen stalen deur van de slaapkamer en twee smalle verticale ramen in de voorgevel. De slaapkamer is daarom bewust aan de voorkant van de woning geplaatst – een doordachte keuze die zowel ruimtelijk als functioneel werkt.
De ensuite inloopkast is afsluitbaar met glazen stalen schuifdeuren, wat zorgt voor een open, maar duidelijke indeling. In de wand tussen de slaapkamer en de hal naar de badkamer en keuken heb ik een extra deur geplaatst, zodat de badkamer ook direct vanuit de slaapkamer bereikbaar is – comfortabel en logisch in gebruik. In dezelfde hal heb ik daarnaast een nis gecreëerd voor de technische ruimte, waar onder andere de cv-installatie, wasmachine en droger zijn ondergebracht.
Het fietsenhok bevindt zich achterin de aanbouw en is bereikbaar via een zijpad, waardoor er ook een achterom mogelijk is – praktisch én doordacht.
Architectuur: strak én warm
Voor het ontwerp van de buitenzijde en de technische uitwerking werkte ik opnieuw samen met Buro Winters. Hoewel de oorspronkelijke garage een puntdak had, kozen we bewust voor een strakke, rechte aanbouw. Dit was niet alleen efficiënter binnen het budget, maar zorgde ook voor een modern contrast met het bestaande woonhuis.
De gevel is bekleed met Trespa plaatmateriaal in houtlook (vergrijsd Red Cedar) met een gefreesde lattenstructuur – strak en modern, maar met een warme, natuurlijke uitstraling. Donkere kozijnen geven het geheel een eigentijdse afwerking.
Details die het verschil maken
Ook aan de technische afwerking is gedacht:
– Zonnescreens voor de schuifpui zijn onzichtbaar weggewerkt in de gevel.
– Ventilatieroosters boven de slaapkamerkozijnen zijn geïntegreerd in de buitenmuur, waardoor ze niet zichtbaar zijn in het glas.
Deze verfijningen dragen bij aan de strakke uitstraling van de woning, zonder in te leveren op comfort of functionaliteit.
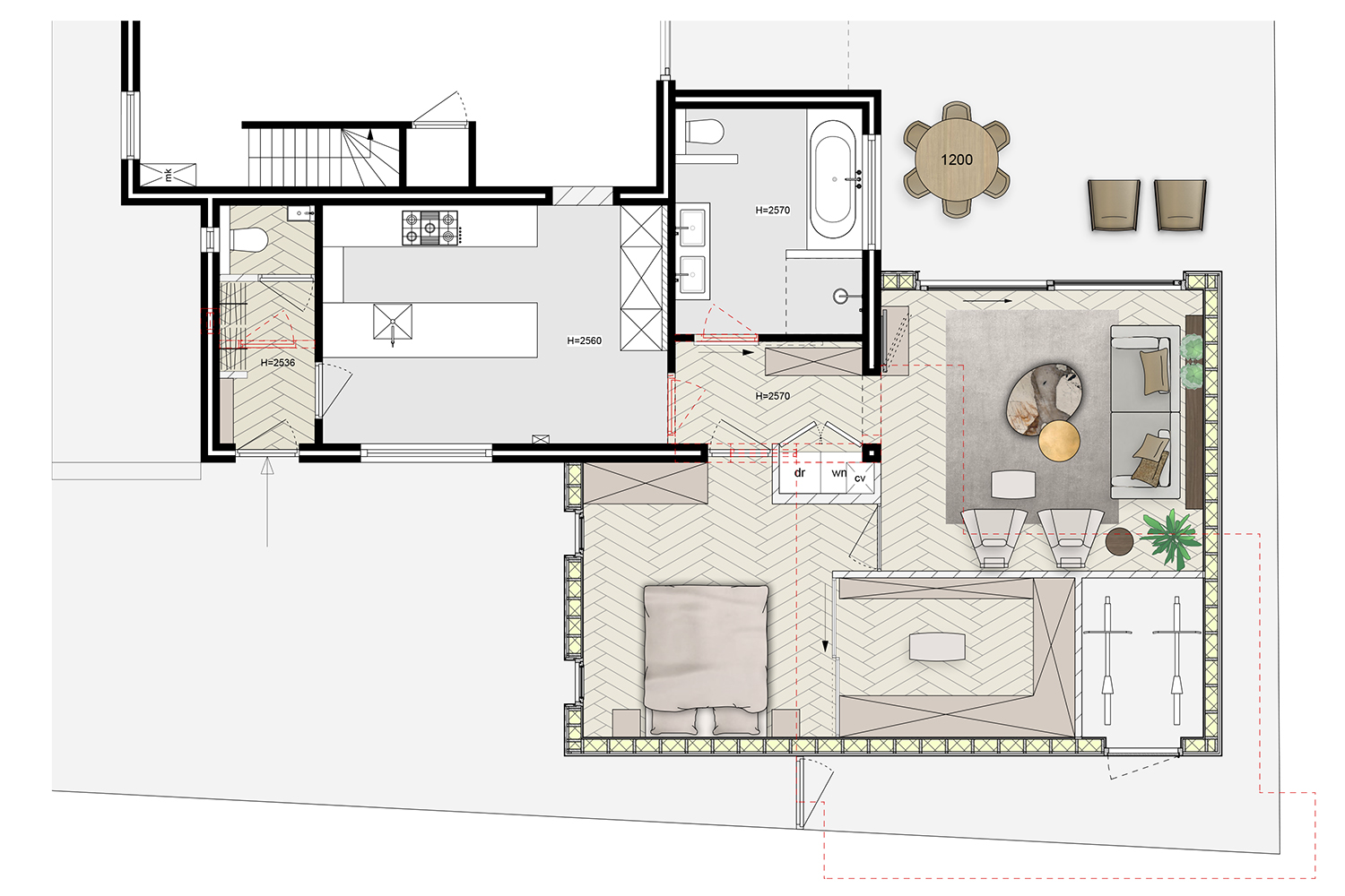
Rust en warmte in de styling
Qua inrichting en afwerking hebben we gekozen voor een rustige, warme basis. Er komt een eiken pvc-vloer in Weense punt door de hele woning, met beige tinten op de muren. Notenhouten kasten worden gecombineerd met zachte beige fronten, en stalen deuren met rookglas zorgen voor een chique, eigentijdse uitstraling. In zowel de woonkamer als de slaapkamer brengen we met behang met een natuurlijke look extra warmte en sfeer aan.
Bouw in voorbereiding
De voorbereidingen voor de bouw zijn in volle gang. De planning is om begin 2026 te starten met de realisatie. Foto’s van het eindresultaat volgen zodra de woning is opgeleverd.
















Hulp nodig met het ontwerp van je woning?
Neem contact met ons op voor een vrijblijvend kennismakingsgesprek!
