LICHT, LOGICA EN KARAKTER
Voor een jong gezin mocht ik de herindeling van een klassieke boerderijwoning in Etten verzorgen. De woning zat al generaties in de familie en had nog de indeling van vroeger: afgesloten ruimtes, donkere hoeken en veel onbenutte vierkante meters. De nieuwe bewoners wilden een gezinswoning met licht, ruimte, logica en eenheid – maar wél met behoud van authentieke elementen.
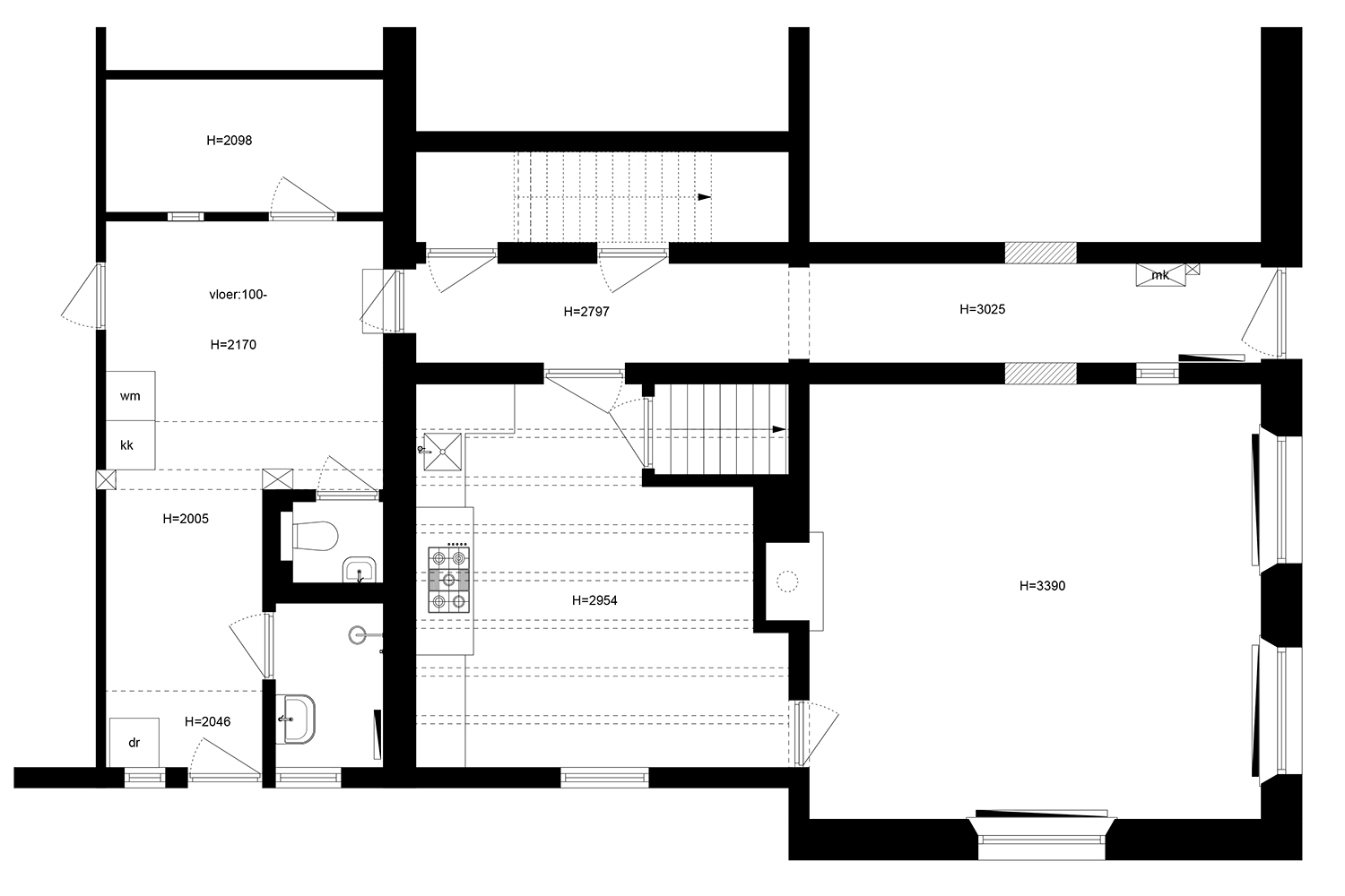
Van gesloten plattegrond naar ruimtelijk geheel
De originele entree aan de voorzijde werd nauwelijks gebruikt. In plaats daarvan gebruikten de bewoners de zij-ingang via de berging. Samen besloten we van deze zijentree de nieuwe hoofdingang te maken, met een logische aansluiting op de rest van het huis. De oude hal aan de voorkant kreeg een nieuwe functie als afsluitbare speelkamer voor de kinderen.
Om meer lucht te creëren in de nieuwe entree, verhoogde ik het lage plafond en zorgde voor een rustige, uitnodigende sfeer met maatwerk kasten en zachte kleuren.
Keuken & woonkamer verbonden – letterlijk én visueel
De wens was een open leefruimte met een centrale keuken. De bestaande situatie was uitdagend: de muur tussen keuken en woonkamer was dragend, en in de hoek zat een blok met de keldertrap. Toch heb ik dit hele blok verwijderd en een constructieve oplossing bedacht: toegang tot de kelder blijft mogelijk via een luik in de vloer – praktisch en onzichtbaar.
Door ook de gangmuur te verwijderen, ontstond er aanzienlijk meer ruimte. In plaats van het bestaande keukenraam kwamen openslaande deuren naar het zijterras, waardoor er veel meer licht binnenvalt én de tuin direct bereikbaar is – een grote verbetering in het dagelijks gebruik.
Een maatwerkkast met bio-ethanolhaard vormt de verbinding tussen keuken en zithoek en zorgt tegelijk voor warmte en rust in de ruimte.
Sfeer: landelijk modern met een rustige basis
Het interieur kreeg een moderne, landelijke uitstraling met een kalm kleurenpalet in beige en grijsgroen. De hele begane grond werd voorzien van een eiken pvc-vloer in Weense punt.
In de entree kwamen kamerhoge greeploze kasten in een zachte beige tint. De keuken combineert Scandinavische eenvoud met notenhout en een strak afgewerkt lichtbeige eiland. Chique stalen deuren met rookglas sluiten de speelruimte af zonder het geheel te doorbreken.
Start bouw binnenkort – foto’s volgen
De verbouwing is in voorbereiding. Zodra de bouw start, volgen de eerste beelden van deze transformatie van een oude boerderij naar een warme gezinswoning met karakter.




















Hulp nodig met het ontwerp van je woning?
Neem contact met ons op voor een vrijblijvend kennismakingsgesprek!
